リフォーム・リノベーション物件一覧

  • 全て
  • 中古一戸建て
  • 中古マンション

5 件 / 全72件

  1. 1

チェックした物件をまとめて

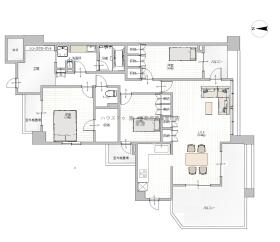
■鴨川望む、最上階・南西角住戸■中庭の緑と四季の風情に包まれる穏やかな一邸

間取り
外観

1億3,400万円

 

所在地

京都府京都市左京区吉田河原町

交通

京阪鴨東線 『神宮丸太町駅』 まで徒歩9分
京阪鴨東線 『出町柳駅』 まで徒歩9分

専有面積 96.68m2 築年月 2005年01月 間取り 3LDK
所在階 7階建て/7階 建物構造 RC 学区 第四錦林小学校(約400m)
スタッフ写真

担当者より京都の情緒を象徴する鴨川を一望する、最上階・南西角住戸。中庭の豊かな緑や鴨川沿いの草木など四季の移ろいを身近に分かち合い、室内には心地よい光と風が舞い込む、穏やかな一邸です。 2025年8月にリフォームを終えた室内は、気になる箇所を丁寧に整えられ、すぐにご入…

担当エージェント:坂元颯太

  • パノラマ写真
  • リフォーム済
  • 駐車場あり
  • 写真5枚以上
  • オープンハウス開催

■2026年5月末リフォーム完成予定!陽光あふれる、収納豊かな住まい■JRと近鉄の2沿線利用可

間取り
外観

1,998万円

 

所在地

京都府宇治市槇島町月夜

交通

JR奈良線 『宇治駅』 まで徒歩17分
近鉄京都線 『小倉駅』 まで徒歩20分
JR奈良線 『JR小倉駅』 まで徒歩26分

専有面積 64.55m2 築年月 1990年12月 間取り 3LDK
所在階 7階建て/5階 建物構造 RC 学区 槇島小学校(約850m)
スタッフ写真

担当者より宇治市にございます、2026年5月末にリフォーム完成予定の中古マンションです。水回りから内装まで一新されるため、新築気分で気持ちよく新生活をスタートできます。5階・南向きならではの開放的な眺望と、家中を照らす陽光は、日々の暮らしに彩りを添えてくれるはずです。 …

担当エージェント:長尾恵和

  • パノラマ写真
  • リフォーム済
  • 駐車場あり
  • 写真5枚以上
  • オープンハウス開催

■2022年7月リフォーム(LDK拡大)■ほどよく琵琶湖に近く自然の中でお散歩も■こだわりのある邸宅

間取り
外観

2,900万円

 

値下げ物件

所在地

滋賀県大津市堅田1丁目

交通

JR湖西線 『堅田駅』 まで徒歩29分
JR湖西線 『堅田駅』バス乗車5分 バス停『江若交通バス 衣川』 まで徒歩10分
JR湖西線 『おごと温泉駅』 まで徒歩29分

建物面積 131.65m2 間取り 3LDK+S 建物構造 木造
土地面積 156.17m2 築年月 2013年04月 学区 堅田小学校(約1700m)
スタッフ写真

担当者よりこちらの邸宅は、ライフスタイルに「メリハリ」を生むこだわりの設計です。あえてダイニングキッチンとリビングを分けることで、食事の時間は賑やかに、食後のリラックスタイムは静かな別世界として、家族の時間を大切に育める空間を実現しました。 また、暮らしの「ゆとり」を…

担当エージェント:坂元颯太

  • パノラマ写真
  • リフォーム済
  • 駐車場あり
  • 写真5枚以上
  • オープンハウス開催

■空間に「メリハリ」と「ゆとり」を生むデザイン性のある邸宅■フォレオ大津一里山まで徒歩15分!

間取り
外観

1,998万円

 

所在地

滋賀県大津市大江6丁目

交通

JR東海道線 『瀬田駅』 まで徒歩27分
京阪電鉄石山坂本線 『唐橋前駅』 まで徒歩30分
JR東海道線 『石山駅』 まで徒歩38分

建物面積 91.91m2 間取り 3LDK 建物構造 木造
土地面積 125.92m2 築年月 1996年06月 学区 瀬田小学校(約1400m)
スタッフ写真

担当者より空間に「メリハリ」と「ゆとり」を生むデザイン性が光る邸宅は、日々の暮らしに豊かさをもたらします。 特にLDKにある小上がりの畳スペースは、ベンチやソファ、お子様の遊び場、家事スペースとして多用途に活躍する万能空間です。キッチンが分かれているため、生活感を隠し…

担当エージェント:長尾恵和

  • パノラマ写真
  • リフォーム済
  • 駐車場あり
  • 写真5枚以上
  • オープンハウス開催

2025年4月末リフォーム完成済・売主直販・JR瀬田駅まで徒歩4分・陽当たりの良い二面バルコニー

間取り
外観

3,998万円

 

所在地

滋賀県大津市大萱1丁目

交通

JR東海道線 『瀬田駅』 まで徒歩4分
JR東海道線 『石山駅』 まで徒歩33分
JR東海道線 『南草津駅』 まで徒歩43分

専有面積 99.22m2 築年月 2002年04月 間取り 4LDK
所在階 14階建て/2階 建物構造 SRC 学区 瀬田東小学校(約730m)
スタッフ写真

担当者よりJR瀬田駅まで徒歩4分の中古マンションです。2025年4月末 リフォーム完成済ですのでそのままお住まいいただけます。ゆとりある4LDKで大切なペットとお住まい可能(規約有)です。風通し・陽当たりの良い二面バルコニーや、ウォークインクローゼット2ヵ所など住みやす…

担当エージェント:長尾恵和

  • パノラマ写真
  • リフォーム済
  • 駐車場あり
  • 写真5枚以上
  • オープンハウス開催

もっとたくさん物件がみたい!という方へ

店頭ではHPに掲載できない物件を併せて
80件をご案内できます!

来店予約して物件を探す お気軽にご来店下さい!

店頭で

ご希望にマッチした物件や、新着・値下げ情報を
即日メールにてお届けします!

マイページに希望情報を登録する 新着物件メールもお届け!

Webで

5 件 / 全72件

  1. 1

どんな街か、もっと知りたい!
地元密着のスタッフがお応えいたします!

来店予約して物件を探す お気軽にご来店下さい! スタッフ

ページトップ

ページトップ